Mantener la estructura


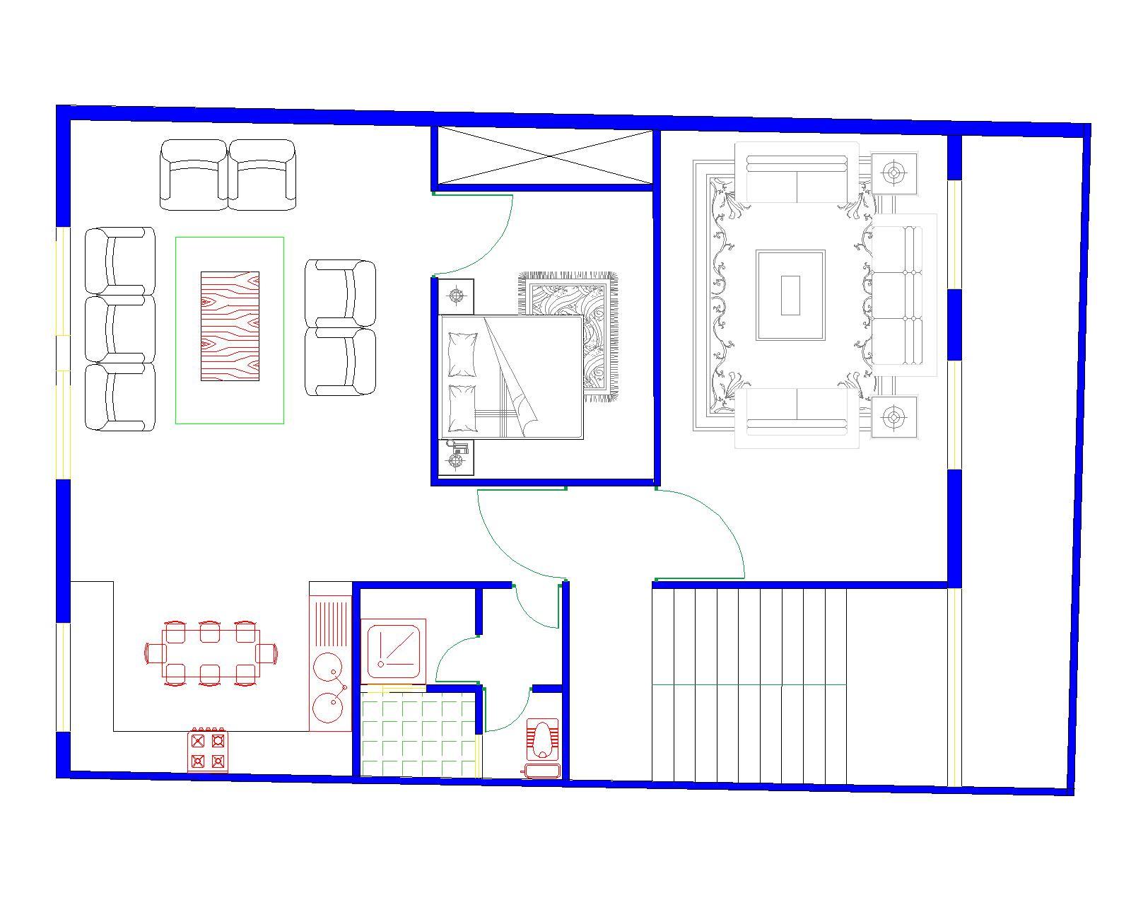
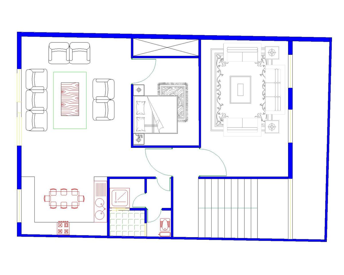
The photo captures a high-angle view of a modern apartment's interior, bathed in the bright, diffused light of a spring midday. The scene is a harmonious blend of clean lines and comforting textures. To the left, a cozy seating area is arranged around a low wooden coffee table, suggesting a relaxed atmosphere. Adjacent to this is a neatly made bed, hinting at a private sanctuary within the home. Further to the right, a more formal living room unfolds, featuring plush white sofas and a striking white carpet adorned with intricate, possibly bohemian-inspired, patterns. The walls appear to be painted in a neutral, calming tone. A well-equipped kitchen, with white cabinets and tiled fixtures, is visible, and a dining area with a table and chairs suggests shared meals. A staircase with steps measuring 17 centimeters in height leads upwards, implying vertical space and potential for further exploration. All doors are clearly delineated, opening up pathways between these distinct areas. The overall impression is one of an organized, welcoming, and subtly stylish living space.